リフォーム用語集 か行
階段
「階段」とは、建物の上下の階など、高さの異なる場所をつなぐ、段々のある通路のことをいいます。
西欧の階段は祭壇から発展し、日本の階段は「はしご」から発展したものだといわれます。
はしごから発展したと考えると、私たちの住まいの階段が、なぜこれほど狭くて急なのかがわかるような気がします。
元々平屋を原型とする日本の家では、二階は物置だったり作業場だったりして、上り下りもはしごがほとんどだったようです。
住宅階段の歴史は浅く、昭和二五年に「建築基準法」が施工されて、初めて住宅の階段の最低寸法が明確に規定されました。
「幅七五センチ以上、蹴上げ(一段あたりの高さ)二三センチ以下、踏みづら(踏み面一段あたりの奥行き)一五センチ以上」がそれです。
ただ、この最低寸法の階段は狭くてとても急なため、家を建てるときなどは階段の寸法をよく確認することが必要です。
また、階段の途中に設けられた平らな部分を「踊り場」と呼びますが、これは明治時代に西洋建築が貴人、麗人が集まる社交場で採用され、着飾った女性がこの部分で向きを変える際、ドレスの裾が翻って踊っているように見えたからこう呼ばれるようになったといわれています。
外壁の補修
外壁材は経年変化を受けやすいため、5年〜10年ごとに定期的に補修したり、塗り替え・張り替えを行う必要があります。
●モルタル塗り壁・吹付仕上げ壁・漆喰塗り壁/3年〜5年ごとに汚れ部分や亀裂部分を補修し、8年頃に部分塗り替えを行います。また亀裂が外壁全体の2割以上に発生したら、20年〜25年頃を目安にして、全面塗り替えを行う必要があります。
●木質壁・ボード張り壁/ヒノキ・スギ・ヒバなどの木質壁やボード張り壁は、3年〜5年ことに汚れや腐朽・破損カ所を補修し、塗装塗り替えを行います。また15年〜20年頃を目安にして、全面張り替えを行う必要があります。
●サイディング壁/10年ごとに汚れや破損部分を補修し、20年〜25年頃を目安にして、サイディングを全面的に張り替える必要があります。
●タイル壁/清掃や傷直しを毎年行い、7年〜10年頃に目地の塗り替えを行います。また25年〜30年頃を目安にして、タイルを全面的に張り替える必要があります。
カウンターキッチン
キッチンとLD(リビング・ダイニング)との間にカウンターが付いているキッチンのこと。キッチンとLDとを仕切る壁に、幅1.5〜2m、高さ1m程度の窓をあけたタイプや、もともと仕切る壁がないオープンスタイルの対面式キッチンなどのタイプがあります。キッチンで家事をしながら、LDの様子に目を配ったり、LDにいる家族にカウンター越しに料理などを受け渡すことができるのが特徴です。
介護予防福祉用具のレンタル・購入費の支給
要支援に認定された人(一部、要介護1の人を含む)が、自立した日常生活を送るために必要な用具(介護予防福祉用具という)を購入・レンタルした場合に、年間10万円を限度にして、その内の9割(9万円)が保険で支給されるというもの。レンタル介護予防福祉用具としては、車イスとその付属品、特殊寝台とその付属品、床ずれ防止用具、体位変換機、手すり、スロープ、歩行器、歩行補助つえ、認知症老人徘徊感知機器、移動用リフトなどがあります。また購入介護予防福祉用具としては、腰掛け便座、特殊尿器、入浴補助用具、簡易浴槽、移動用リフトのつく具の部分など、衛生上、レンタルには向かないと考えられる用具があげられます。
矩(かね)
建築では一般に「矩(かね)」と読みます。
大工さんが使う直角定規を兼ねる金属製のL型の物差しを「矩差し(かねさし)=曲尺(かねじゃく)差し金(さしがね)」。直角に曲がっていることを「矩の手(かねのて)」。45度の傾斜のことを「矩勾配(かねこうばい」)と、直角(45度)をいうときに使う言葉です。
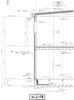
そして、図面では「矩計図(かなばかりず)」という使い方をします。
矩計図とは、建物の屋根から床、基礎まで含めた全体像を垂直に切断した断面詳細図で、屋根の形や材料、下地、各階の床や開口部、天井などの各部の寸法や使用部材、仕上げ材料などの名称が書かれてあります。
平面図と矩計図だけで、簡易な建物は建てられるといわれるくらい、建物の建築設計の代表的な図面です。
矩計図(少し見難いですが、イメージだけ見て頂ければ)

壁
壁(かべ、wall)とは、空間を仕切り区画を形成するために設けられる、垂直(またはそれに近い)方向に立つ構造物のことで、建築物の外周を囲んで内と外の空間を区切るもの(外周壁)や、建築物内部を仕切り部屋を作るもの(間仕切り壁)があります。
外周壁には、構造体の一部として建物を支える機能を持つ場合と、その機能を持ない場合があり、前者の場合は耐力壁(ベアリングウォール)、後者の場合には帳壁、非耐力壁(カーテンウォール)と呼ばれます。
日本建築では木材によって柱や梁を組んで建物を支えるため、非耐力壁が多く使われてきましたが、西洋建築では、石や煉瓦を積み上げた壁が古くから使われ、屋根を支える耐力壁としての機能が風雨の遮断とともに重要でした。
また、壁の材料として、日本では石、土壁、板壁、漆喰などが用いられ、明治、大正時代は、煉瓦壁。第二次世界大戦後は、コンクリート、石膏ボードなどが用いられているようになりました。
その後、洋風建築の普及に伴い、断熱材等の開発が行われ、防音(近年では断熱も兼ねて)目的でグラスウールで被覆されたものが多く用いられるようになりました。
クロス
壁や天井等に張る内装材のこと。布、ビニール、和紙などが使われます。近年は、シックハウス対策として自然素材系のクロスを採用したり、ペットを飼っている家では防臭性や耐アンモニア性が高く、引っかき傷に強い素材を採用するケースが増えています。
玄関
「玄関」とは、建物の主要な出入口のことをいいます。
元は中国の「玄妙の道に入る關門」のことをいい、日本では、鎌倉時代に禅宗で用いられた仏教用語で、禅宗寺院の客殿や方丈(住職が生活する建物)などへの出入口として造られました。
一般住宅で作られ始めたのは江戸時代以降と見られています。
また、玄関の位置は「妻入り」と「平入り」の二種類があります。
その地方によって、妻入りの町家が並んでいる町と平入りの町家が並んでいる町がありますが、妻入りの町家は間口が狭く奥行きのある造りとなっています。
これは江戸時代に間口の巾を基準にして屋敷税が賦課されたので、税金軽減の為意図的に間口を狭くしたこと、人口が増えると、古い町並みに連続して新しい町並みを創る必要があるため、古くからの慣習に従って間口が狭い「妻入り」の町家が増えていったなどの諸説があります。

工事クレーム対策
住宅の建設工事やリフォーム工事に対するクレームを防止するために、各社ではさまざまな対策を講じている。以下、主なものを見ていくことにしましょう。
(1)工事の日時/土・日曜は工事を休止する、あるいは騒音工事を行わない。工事時間は8時30分〜17時30分まで。エレベーターでの搬出入時間を、住民の出勤・通眼時間とずらす、など。
(2)作業中のマナー/建物内やバルコニー、現場周辺では禁煙にする。ラジオなど工事音以外の音を発生させない。指定以外の場所に作業車を駐車させない、など。
(3)その他/管理人との連絡を密にする。火災報知機を事前に止めてもらう。24時間体制で緊急連絡に対応する、など。
